
Welspun One Proxima,
Devanahalli
North Bangalore's premier
warehousing and R&D hub

Overview
Elevating warehousing standards
Located in North Bangalore, this flagship project benefits from seamless connectivity, strong industrial demand, and proximity to the upcoming Foxconn facility. Apart from Grade-A warehousing, it will have spaces for life science R&D as well as retail & service apartments so that it can cater to all the needs of the community.
Location
Bangalore
Project area
56.5 acres
Build-up area
1.9 Mn sq.ft.
Key highlights
What makes this park exceptional

Prime industrial hub
Situated in North Bangalore, the asset is near the airport, upcoming Foxconn facility, and industrial areas like Doddaballapur and Tumakuru.

Access & connectivity
Has convenient entry & exit from the Satellite Town Ring Road (STRR), providing access to North, East and West parts of Bangalore.

Mixed-use development
Near existing educational institutions & upcoming residential & commercial developments, this project includes life science R&D and retail & service apartments.
Regional advantages
Prime warehousing,
perfectly positioned

Bangalore’s growth potential
One of the country’s fastest-growing cities, with North Bangalore emerging as a key hotspot of growth
Infrastructure support
Robust infrastructure with connectivity improvements expected due to growing North Bangalore & the ecosystem around Bangalore International Airport.
Limited competitive supply
Limited upcoming Grade-A warehousing supply in the area.
Location
Seamless connectivity at every turn

Satellite Town Ring Road (STRR)
1.8 km
Upcoming Foxconn facility
8 km
Doddaballapura Industrial Area
9 km
NH44
12.7 km
Bangalore airport
17 km
Bangalore city centre
37 km
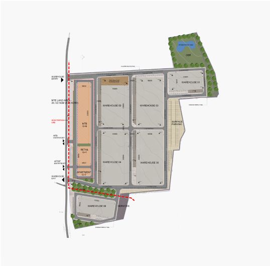
Layouts
Plans built for peak performance
Master plan layout
Explore our meticulously crafted master plan layout, designed to optimize space, efficiency, and connectivity, ensuring seamless operations.
TOTAL PROJECT AREA
56.5 acres
TOTAL BUILT-UP AREA
1.9 Mn sq.ft.

Facilities
Advanced features,
designed for modern logistics

- Sewage treatment, rainwater harvesting, irrigation, and low-flow fixtures
- Solar-ready standing seam roofs
- Solar-reflective materials reduce heat
- Energy-efficient lighting and daylight optimization
- Green procurement prioritised and 68% eco-friendly materials used
- Reused construction waste and 100% waste segregation
- High-efficiency motors, pumps, and diesel generators
- Comprehensive flood risk analysis and mitigation
- GHG reduction policy drives net-zero progress
- Single-use and non-biodegradable plastics are banned
Connect
Drive your business forward with us
Connect with us
Your relationship with us








